湖南柏竣建筑工程

三层别墅设计图,享受生活的居所!
发布时间:2021-03-02 11:08:50  | 人气:  | 来源: 柏竣建筑

现代风格在近些年越来越受到大家的推崇,大家都开始注重生活品味、注重健康时尚、注重合理科学消费。

尤其是在农村别墅领域,现代风格已经占据了一席之地,今天给您推荐一款三层别墅设计图。

6.jpg


别墅参数

[层数]:三层别墅 [结构形式]:框架结构 [建筑风格]:现代风格

[开间]:12.00m   [占地面积]:134.56㎡ [建筑面积]:273.34

[进深]:13.30m   [主体造价]:22万~25万万(仅供参考)

7.jpg


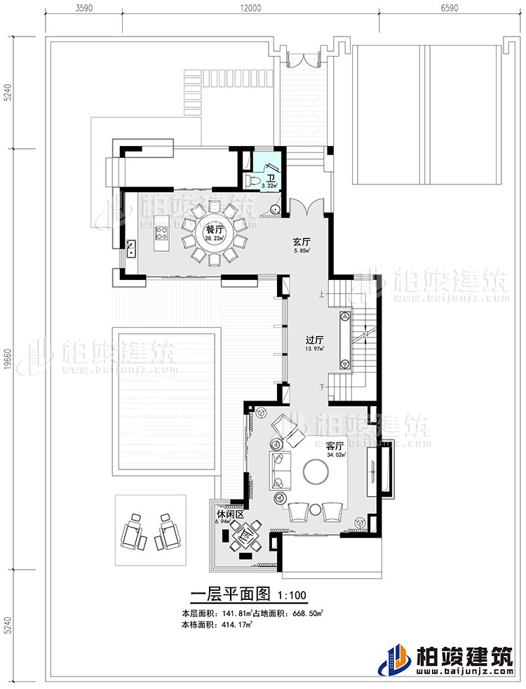
一层:

“禅意”玄关,客厅-餐厅-西厨的“一体化”空间设计,通透大气,尊贵奢华;

配备两层通高全景窗的超大客厅,尽享室外的无限海景及私家庭院空间;

豪华清朗的客卧室尽显主人的待客之道;

8.jpg

闲暇静谧的过厅,合家欢融的家庭厅(可自主加设),悠闲自在的超大露台,无不从空间品质上,体现着设计的人文气质;

9.jpg

奢华的主人套卧,大尺度步入式衣帽间,奢享型的卫浴空间,配以转角窗实现270度海景,这将是“海天一色、贴近自然”的沐浴体验。




快速导航
湖南柏竣建筑工程 湖南柏竣建筑工程 湖南柏竣建筑工程 湖南柏竣建筑工程 湖南柏竣建筑工程